【No.八頭町174】八頭町の空き家物件No.174【VR内覧】
家庭菜園も楽しめる庭付き広々物件
物件の詳細
| 所在地 | 八頭郡八頭町水口(地図) | 
|---|---|
| 物件種目 | 売買(戸建住宅) | 
| 価格 | 売買価格:150万円 (売買価格は応相談) | 
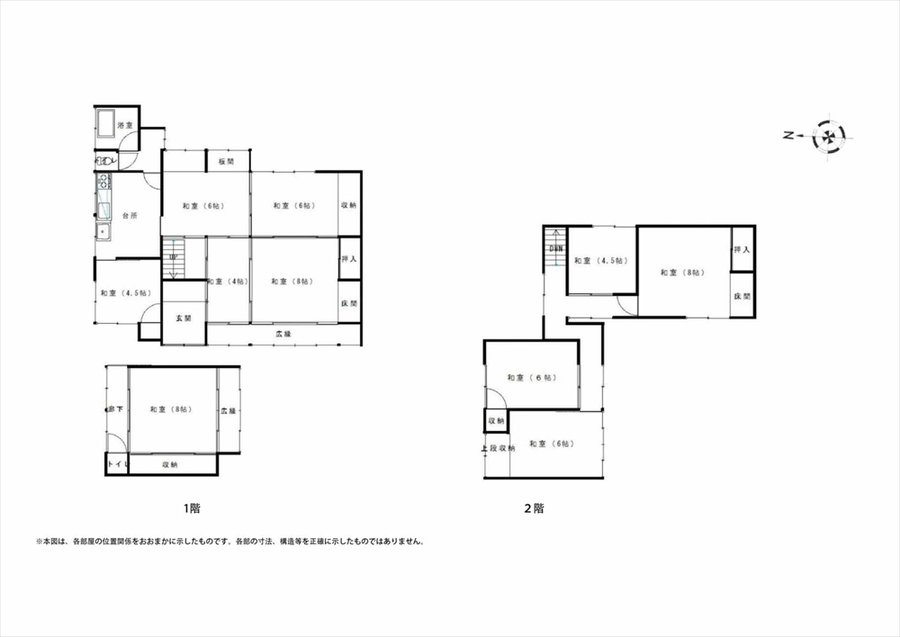
| 構造・間取 | 4K、4LDK以上 木造2階建 | 
| 建築年 | 1954年 | 
| 土地面積 | 503.15 | 
| 延床面積 | 119.83 | 
| 補修の要否 | 多少の補修必要あり | 
| 補修費用の負担 | 入居者負担 | 
| 備考 | ・VR内覧(https://spacely.co.jp/yazu-1/174) ・残置している家財は使用可(要らない家財は所有者負担で処分) ・未登記建物 ・八頭町では、空き家情報の紹介や連絡調整までを行いますが、交渉・契約についての仲介行為は行いません。トラブル防止のためにも通常の不動産取引と同様に、宅建業者を仲介することをお勧めしています。 | 
設備
| 駐車場 | あり 3台 | ガス | なし | 
|---|---|---|---|
| 水道 | 上水道 | 下水道 | 公共下水道 | 
間取り図

所在地MAP
お問い合わせ先
・八頭町移住定住センター
 お問い合わせフォーム(https://www.yyp.or.jp/contact/)
・八頭町企画課地域戦略室
 八頭郡八頭町郡家493番地 八頭町役場本庁舎2階
 
            
















