【No.八頭町190】八頭町の空き家物件No.190【VR内覧】
農地付き古民家
物件の詳細
| 所在地 | 八頭郡八頭町用呂(地図) |
|---|---|
| 物件種目 | 売買(戸建住宅) |
| 価格 |
売買価格:600万円 (応相談) |
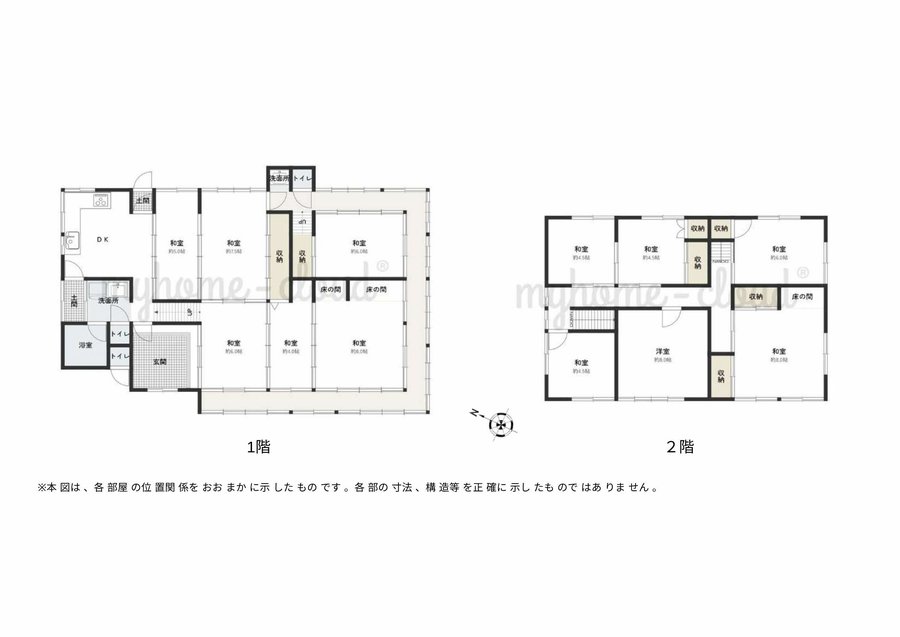
| 構造・間取 | 4K、4LDK以上 木造2階建て |
| 建築年 | 1958年 |
| 土地面積 | 925.79 |
| 延床面積 | 199.99 |
| 補修の要否 | 補修不要 |
| 補修費用の負担 | 入居者負担 |
| 備考 | ・VR内覧(https://spacely.co.jp/yazu-1/190) ・現状有姿渡し ・残置している家財は使用可(要らない場合は所有者が処分する) ・入居者は自治会に参加すること ・建物未登記 ・土砂災害警戒区域(土石流) ・八頭町では、空き家情報の紹介や連絡調整までを行いますが、交渉・契約についての仲介行為は行いません。トラブル防止のためにも通常の不動産取引と同様に、宅建業者を仲介することをお勧めしています。 |
設備
| 駐車場 | あり 4台 | ガス | プロパン |
|---|---|---|---|
| 水道 | 上水道 | 下水道 | 公共下水道 |
間取り図
所在地MAP
お問い合わせ先
・八頭町移住定住センター
お問い合わせフォーム(https://www.yyp.or.jp/contact/)
・八頭町企画課地域戦略室
八頭郡八頭町郡家493番地 八頭町役場本庁舎2階